Citykern | 250 - 13.597 m² | Mietpreis auf Anfrage

44137 Dortmund

Objekt-Nr.:P102297

Mietzins auf Anfrage

Objektdaten

Informationen

verfügbar ab

nach Vereinbarung

Räume veränderbar

Flächen

Zustand und Bauart

Baujahr

1975

Ausstattung

Boden

Teppich

Fahrstuhl

Personen

Netzwerkverkabelung

Stellplätze

Tiefgarage

250

Beschreibung

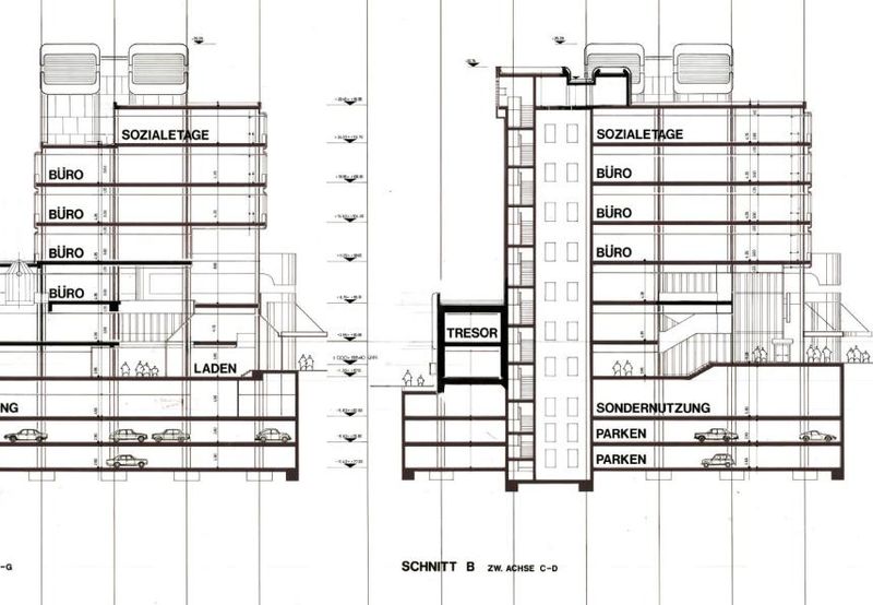
Die 6 geschossige Liegenschaft zzgl. Untergeschoss und Dachterrassen mit einer Bruttogeschossfläche von 28.000 m² befindet sich in zentraler Lage auf der Dortmunder Kampstraße und verfügt über eine eigene, 2-geschossige Tiefgarage mit aktuell ca. 250 Stellplätzen. Das Büro- und Geschäftshaus auf der Kampstraße 47 wurde von dem renommierten Architekten Harald Deilmann ursprünglich für die Commerzbank entworfen und in den Jahren 1975 bis 1977 errichtet. Aufgrund seiner zeittypischen, von der Pop-Art inspirierten Architektur, wurde das Haus 2011 als Baudenkmal in die Denkmalliste der Stadt Dortmund eingetragen. - ausreichen Tiefgaragenstellplätze vorhanden - Personenaufzug - sehr gute Werbemöglichkeiten

Ausstattung

Die vakanten Flächen bieten Ihnen: - helle & ruhige Räumlichkeiten - abgehangene Decke - arbeitsplatzgerechte Beleuchtung - getrennte WC-Anlagen - flexible Raumaufteilung - Dachterrasse - Kantine

Sonstiges

Sind Sie hier nicht fündig geworden?! Das größte Angebot an Büroflächen im Ruhrgebiet finden Sie auf unserer Homepage unter www.brockhoff.de EnEV: Ein Energieausweis liegt zurzeit nicht vor. Wir möchten höflich darauf hinweisen, dass die hier gemachten Angaben ausschließlich auf den uns vom Vermieter übermittelten Unterlagen und Daten basieren. Für die Richtigkeit und Vollständigkeit können wir keine Haftung übernehmen.

Lage

Die Kampstraße profitiert von ihrer Lage zwischen dem Dortmunder Hauptbahnhof und dem parallel zur Kampstraße verlaufenden Westenhellweg, der fußläufig über die Katharinenstraße erreichbar ist. In ca. 200 m Entfernung zur Liegenschaft in Richtung Westen befindet sich die U-Bahn-Station Westentor, fußläufig in Richtung Osten liegt die U-Bahn-Station Kampstraße. Den Dortmunder Hauptbahnhof erreicht man in wenigen Geh-Minuten und die Dortmunder Westfalenhallen und das Stadion sind nur einige U-Bahn- Stationen entfernt. Im Westen der Kampstraße schließt das Unionsviertel an, das sich mit Fertigstellung des Dortmunder U sowie durch die Impulse des Projekte Ruhr 2010 zu einem beliebten Standort für Künstler und Kreative entwickelt hat.

44137 Dortmund

Die Karte dient lediglich als Orientierungshilfe und stellt nicht die exakte Lage dar. Die vollständige Adresse erhalten Sie bei uns.

Energieausweis

Baujahr

1975

Heizungsart

Zentralheizung