Citykern | ca. 216 - 1.489 m² | coole Flächen | 1 Monat mietfrei!

45127 Essen

Objekt-Nr.:2010/30

Mietzins auf Anfrage

Objektdaten

Informationen

verfügbar ab

ab sofort

Räume veränderbar

Flächen

Bürofläche

ca. 1.489,19 

min. teilbare Fläche

ca. 216,58 

Zustand und Bauart

Baujahr

1912

Zustand

gepflegt

Ausstattung

Boden

Teppich

Fahrstuhl

Personen, Lasten

Netzwerkverkabelung

Sonstiges

Branchen

Büro, Ämter/Behörden

Beschreibung

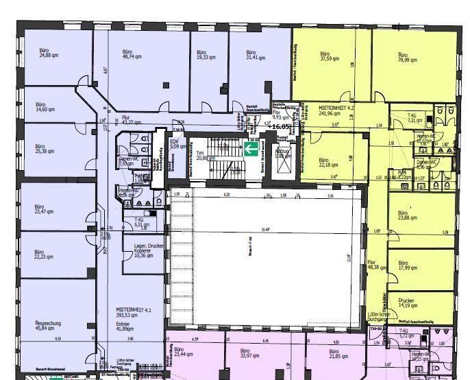
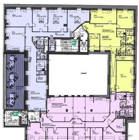
Dieses 1912 erbaute Gebäude stellt sich als markantes Objekt direkt am Flachsmarktkarrée in der Essener Innenstadt dar. Es findet sogar in der Chronik der Stadt Essen explizit Erwähnung und steht aufgrund seines derzeit unter Putz liegenden Reliefs auf der Denkmalschutzliste der Stadt Essen. Die vakanten Büro- und Praxisflächen erstrecken sich über 2 Geschosse in der 4. und 5. Etage dieses gepflegten Büro- und Geschäftshauses, welche über zwei Personenaufzüge zu erreichen sind. Das Objekt ist über den Eingang an der Kettwiger Straße, sowie über einen Eingang Am Porscheplatz zugänglich. Das Objekt wurde umfangreich revitalisiert und bietet Ihnen moderne Flächen. Die gesamte Eingangssituation wurde attraktiv und behindertengerecht gestaltet und bietet den Mietern die Möglichkeit sich auf einer Stele direkt vor dem Objekt großzügig darzustellen. Der Name "Flachsmarkt Karrée" bietet der Immobilie ein Alleinstellungsmerkmal.

Ausstattung

- Bodenbelag: Teppichboden - Odenwalddecke mit integrierter bildschirmarbeitsplatzgerechter Beleuchtung - Sanitär: getrennte Damen und Herren WCs - Verkabelung: über Bodentanks - Besprecher und Serverräume sind klimatisiert - großer Besprecher mit mobiler Faltwand - Teeküche: vorhanden - Highlight im 5. Obergeschoss ist die tolle Dachterrasse

Sonstiges

Sind Sie hier nicht fündig geworden?! Das größte Angebot an Büroflächen im Ruhrgebiet finden Sie auf unserer Homepage unter www.brockhoff.de Es kann in den umliegenden Parkhäusern problemlos geparkt werden. Wir freuen uns, Ihnen die Flächen provisionsfrei anbieten zu können, da wir im Erfolgsfall von der Vermieterseite honoriert werden. Wir möchten höflich darauf hinweisen, dass die hier gemachten Angaben ausschließlich auf den uns vom Vermieter übermittelten Unterlagen und Daten basieren. Für die Richtigkeit und Vollständigkeit können wir keine Haftung übernehmen.

Lage

Das Objekt ist auf der Kettwiger Straße mitten in der Essener Innenstadt gelegen. Von hier aus hat man über den Berliner Platz sowie den Porscheplatz eine sehr gute Anbindung an den ÖPNV, der Hauptbahnhof liegt nur wenige Gehminuten vom Objekt entfernt. Durch die zentrale Lage innerhalb der Stadt hat man eine optimale Anbindung an das Autobahnnetz, so dass auch die umliegenden Städte in kurzer Zeit mit dem PKW erreicht werden können. In unmittelbarer Nähe zum Objekt liegt auch das Einkaufszentrum "Limbecker Platz". Des Weiteren befindet sich der Biosupermarkt "Basic" im Erdgeschoss des Objektes, welches auch über ein reichhaltiges Mittagstischangebot verfügt.

45127 Essen

Die Karte dient lediglich als Orientierungshilfe und stellt nicht die exakte Lage dar. Die vollständige Adresse erhalten Sie bei uns.

Energieausweis

Baujahr

1912

Heizungsart

Zentralheizung